各教学单位:
根据学院统一安排,二期新建楼群已编号,现对主要教学场地作以下说明:
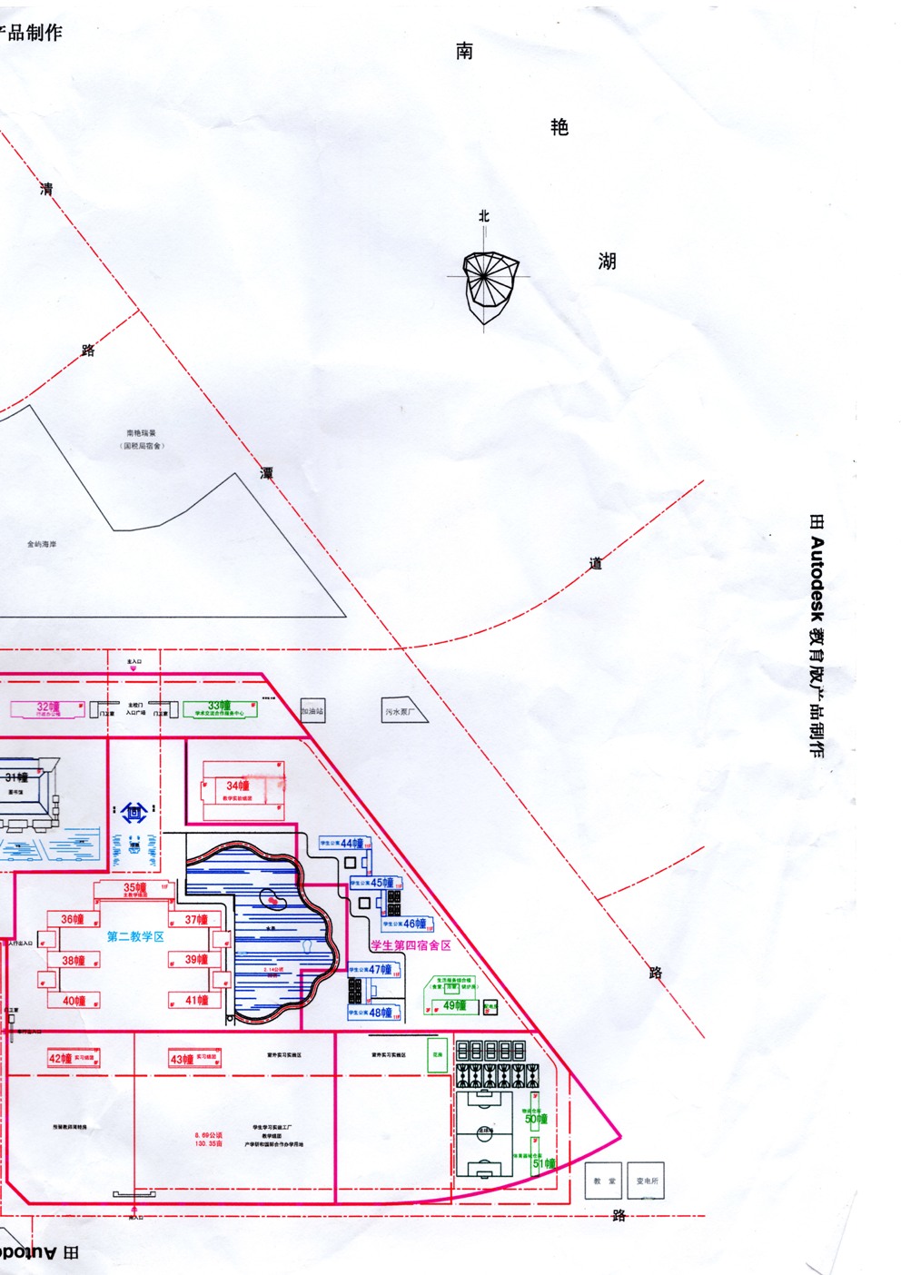
一、 二期教学主楼(原排课系统中的27号楼)编为35号楼
二、 二期计科系楼(原排课系统中的26号楼)编为36号楼
三、 二期数理系楼(原排课系统中的25号楼)编为37号楼
四、 二期电子系楼(原排课系统中的24号楼)编为38号楼
五、 二期艺术系楼(原排课系统中的23号楼)编为39号楼
六、 二期机械系楼(原排课系统中的22号楼)编为40号楼
七、 二期建工系楼(原排课系统中的21号楼)编为41号楼
八、 生化楼编为34号楼
九、 实训中心西楼编为42号楼
教学场地的具体分布图见附表,为保证新学期开学教学活动的顺利进行,请各教学单位务必在开学前组织教师、学生熟悉教学场地。
附件:1、
二期楼宇分布图.jpg
教务处
2012年8月29日

